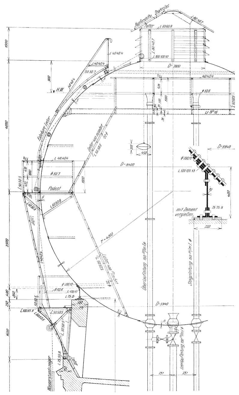
HochbautenWasserkrane, Wasserstationen, Wassertürme
Bauarten Wasserkrane

Wasserkrane Schmalspur
Wasserkrane Bopp & Reuther, Mannheim-Waldhof
Wasserkrane H. Breuer & Co., Höchst a. M.
Wasserkrane Eisenwerk Schafstädt b. Halle
Wasserkrane Eisenwerk Štore (Slowenien)
Wasserkrane Krausewerk G.m.b.H., Neusalz/Oder
Wasserkrane unbekannt
Wasserbehälter Bauart Barkhausen
   
Wasserbehälter Bauart Intze
  
Wasserbehälter Bauart Klönne
 
|
| |